|
水冷螺杆式冷水机组维修保养维护攻略
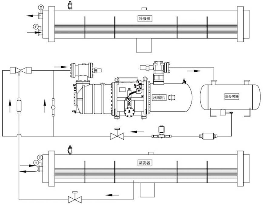
水冷螺杆式冷水机组也是冷水机组的一种,由于它的主要构成部件使用了螺杆式压缩机,所以名称可称谓水冷螺杆式冷水机组。主要由半封闭双螺杆压缩机、壳管式冷凝器及满液式蒸发器、油分离器、节流机构、电气控制系统等组合而成。
(1)蒸发器:在机组运行过程中,蒸发器一直维持较低的温度和压力,以便蒸发的制冷剂气体带走流过其内部冷冻水的热量。
(2)冷凝器:在机组运行过程中,冷凝器一直维持较高的温度和压力,以便流过冷凝器的冷却水带走制冷剂中的热量。
(3)螺杆压缩机:不断将蒸发器中蒸发的制冷剂气体送至冷凝器中,维持系统的高低压差。
(4)油分离器:将随制冷剂气体排出的冷冻油分离出来直接送回压缩机,保证压缩机安全可靠运行。
(5)电控系统:采用PLC或单片机控制系统,可自动调节机组输出制冷量达到用户实际需求;可控制使用侧、热源测水泵及冷却塔风机;显示以下参数:冷冻水进出水温度、冷却水进出水温度、蒸发、冷凝压力等系统参数;可进行当前故障及历史故障记录查询。

蒸汽压缩式制冷循环包括压缩、冷凝、节流、蒸发等四个必不可少的过程。其原理分述如下:

压缩过程:水冷螺杆式冷水机组蒸发器中的制冷剂蒸汽被螺杆压缩机吸入后,电机通过压缩机转子对其施加能量,使制冷剂蒸汽的压力提高并进入冷凝器;与此同时,制冷剂蒸汽的温度在压缩终了时也相应提高。
冷凝过程:由压缩机来的高压、高温制冷剂蒸汽,在冷凝器中通过管内的冷却水放出热量,温度有所下降,同时在饱和压力(冷凝温度所对应的冷凝压力)下,冷凝成为液体。这时,冷却水因从制冷剂蒸汽中摄取了热量,其温度要有所升高。冷却水的温度与冷凝温度(冷凝压力)直接有关。
节流过程:由冷凝器底部来的高温、高压制冷剂液体,流经节流装置时,发生减压膨胀,压力、温度都降低,变为低压、低温液体进入蒸发器中。
蒸发过程:低压、低温制冷剂液体在蒸发器内从载冷剂(如冷水)中摄取热量后蒸发为气体,同时使载冷剂的温度降低,从而实现人工制冷,蒸发器内的制冷剂蒸汽又被压缩机吸入进行压缩,重复上述压缩、冷凝、节流、蒸发过程。如此周而复始,达到连续制冷的目的。
油路循环系统:在压缩机内部,冷冻油依靠系统的高低压差,再通过内设油路,分别对轴承和转子提供润滑和冷却。
压缩机连续排气过程中,冷冻油会随着制冷剂气体一起排出压缩机,如果排出的冷冻油无法重新回到压缩机,将可能导致压缩机失油,严重时会损坏压缩机。回油系统,保证随制冷剂气体排出的冷冻油顺利回到压缩机,确保机组安全可靠运行。

回油系统主要分为两个部分:
油分回油:在压缩机排气和冷凝器之间安装了高效油分离器,随着制冷剂气体排出的冷冻油,绝大部分会被油分离器拦截并通过吸气口直接送回压缩机。
高压引射回油:小部分冷冻油进入冷凝器后,最终会在蒸发器中聚集,依靠高压液体作为动力,可以将聚集在蒸发器中的冷冻油直接带回压缩机。
水冷螺杆式冷水机组控制系统介绍:
控制系统采用微电脑控制,控制柜面板上装有电源、运行、故障指示灯,可方便直观地了解当前机组的工作状况。此外,控制柜面板上装有急停开关,当机组发生紧急故障需马上停机时,可按下急停开关,确保机组安全。
由于压缩机是机组的重要部件,因此针对压缩机的保护有:
① 电源缺相、逆相保护;
② 热过载保护;
③ 电流过流保护;
④ 压缩机排气温度保护;
⑤ 压缩机内部过载保护;
⑥ 高低压差保护。
电气接线施工
确认主电源的电压波动是在铭牌标称值的±10%范围之内,且电压的不平衡在±2%以内,如果超过这个范围,请将机组保持关机状态,并立即联系当地电力部门。
相电压不平衡的计算公式为:电压不平衡率%=与平均电压的最大偏差/平均电压×100%。
机外电源线及断路器选择参考:
|
电源相线线径 (mm2) |
35 |
50 |
95 |
95 |
120 |
150 |
185 |
|
电源接地线线径 (mm2) |
16 |
25 |
50 |
50 |
70 |
70 |
95 |
|
断路器额定容量 (A) |
125 |
160 |
200 |
250 |
320 |
320 |
400 |
|
电源相线线径 (mm2) |
240 |
300 |
120×2 |
150×2 |
185×2 |
240×2 |
|
|
电源接地线线径 (mm2) |
120 |
150 |
120 |
150 |
185 |
240 |
|
|
断路器额定容量 (A) |
400 |
500 |
630 |
630 |
800 |
800 |
|
水冷螺杆式冷水机组一般使用时间为3000h/年左右(根据我国气候地理条件)。为了确保机组长期安全可靠地正常运转,以及长期使用的运转寿命能够延长,减少运行费用,对机组经常性的科学维护和保养工作,是非常重要。 ,
水冷螺杆式冷水机组运行和检修过程中的日常维护、保养,称为预防性保养和维护。客户有责任根据机组运行的实际情况,有针对性的制定机组的年、月定期维护、保养的计划规程,并进行机组的日常维护和定期维护。
除垢:长期运行后,机组壳管式换热器水侧传热表面会沉积氧化钙或其他矿物质,这些矿物质在传热表面结垢较多时,会影响传热性能而导致电能消耗增加、排气压力升高。可采用甲酸、柠檬酸、醋酸等有机酸清洗。
冬季关机:当冬季关机时,应清洗机组内外表面,并吹干;必须打开放水阀,放净壳管换热器内的存水,以防发生冻结事故。
春季开机:在较长时间停机后,要启动机组时,应做如下准备工作:
(1)彻底检查和清理机组。
(2)清洁水管路系统。
(3)检查水泵。
(4)拧紧所有线路接头。
(5)按要求对机组压缩机进行预热。
系统防冻:如果壳管式换热器的流道发生严重结冰情况,可能造成壳管式换热器破裂和泄漏,因此对机组防冻要特别予以重视,以下三点请用户特别注意:
(1)在较低环境温度下停机备用时,若机组放在室外温度低于0℃的环境中必须将蒸发器和冷凝器中的水排尽。放水的具体操作步骤见整机上的放水标识。
(2)运行时,如果冷冻水水流开关失效时将可能导致水管出现冻结,因此水流开关必须与机组进行联锁。
(3)维护时,在给机组充注制冷剂或为了维修而放掉制冷剂时,有可能导致蒸发器内水结冰。一定要使蒸发器中的水保持流动或将水彻底放干净。
警告:
水冷螺杆式冷水机组使用介质为水,在冬季气温有低于零度的地区使用时必须做好如下方面的工作:机组必须在水系统中添加防冻液(乙二醇),请按要求添加比例。停机后不可切断电源,否则自动防冻运行保护将失去作用。
故障分析及排除方法:
|
故障 |
可能原因 |
检测及排除方法 |
|
排气压力过高 |
系统中有空气或有其它不凝气体 |
从注氟嘴排除气体,必要时重新抽真空。 |
|
冷却塔风机故障 |
检修冷却塔风机,恢复运转。 |
|
吸气压力过高 |
见“吸气压力过高” |
|
环境温度过高 |
|
|
冷却水水流量过小 |
检查冷却水系统,调大水流量。 |
|
压缩机油位过低 |
检查视油镜液位并加注冷冻油 |
|
排气压力过低 |
吸气压力过低 |
见“吸气压力过低” |
|
制冷剂泄漏或充注不够 |
检漏并充氟 |
|
冷却水水温过低 |
检查冷却塔容量是否太大或环境温度是否太低。 |
|
吸气压力过高 |
排气压力过高 |
见“排气压力过高” |
|
制冷剂充注过量 |
放掉部分制冷剂 |
|
液态制冷剂从蒸发器流入压缩机 |
|
|
冷冻水进水温度高于允许最高值 |
检查和调整膨胀阀,确保膨胀阀感温包与吸气管紧密接触并与外界完全隔热。 |
|
吸气压力过低 |
干燥过滤器堵塞 |
更换干燥过滤器滤芯 |
|
膨胀阀未调节好或出故障 |
调节到合适的过热温度,或检查膨胀阀感温包是否有泄漏。 |
|
系统制冷剂不足 |
检漏并充氟 |
|
冷冻水进水温度明显低于规定温度值 |
|
|
冷冻水流量不够 |
检查蒸发器进出水管路压力是否太低,调节冷冻水流量。 |
|
压缩机因高压保 护停机 |
冷却水水温过高 |
|
|
冷却塔风机故障 |
检修冷却塔风机 |
|
高压停机设定值不正确 |
检查高压开关 |
|
压缩机因电机过 载停机 |
电压过高或过低 |
检查电压不得超出或低于额定电压 ±10%。 |
|
排气压力过高 |
见“排气压力过高” |
|
冷却水温度过高 |
检查冷却塔是否容量太小 |
|
过载元件故障 |
检查压缩机电流,和压缩机上规定的满负 荷电流进行比较。 |
|
电机或接线端子短路 |
检查电机和端子对应电阻 |
|
压缩机因内置温 度保护开关动作 停机 |
电压过高或过低 |
检查电压,不得超出上述规定范围。 |
|
排气压力过高 |
见“排气压力过高” |
|
冷冻水进水温度过高 |
|
|
压缩机内置温度保护开关故障
|
更换元件 |
|
系统制冷剂不足 |
检查是否漏氟 |
|
压缩机因低压保护停机 |
干燥过滤器堵塞 |
更换干燥过滤器滤芯 |
|
膨胀阀故障 |
调整或更换膨胀阀 |
|
低压停机设定值不正确 |
检查低压开关 |
|
制冷剂不足 |
充注制冷剂 |
|
压缩机噪音大 |
压缩机冷冻油不足 |
检查视油镜液位并加注冷冻油 |
|
压缩机不能启动 |
过流继电器跳开,保险烧坏。 |
更换损坏元件 |
|
控制电路没有接通 |
检查控制系统接线 |
|
无电流 |
检查供电 |
|
高压保护或低压保护 |
见前面吸、排气压力故障部分。 |
|
接触器线圈烧坏 |
更换损坏元件 |
|
电源相序连接错误 |
重新连接,调整其中两条接线。 |
|
水系统故障,水流开关断路。 |
检查水系统 |
|
操作显式器有报警信号 |
查看报警类别,采取相应措施。 |
|
开停机时间设定有误 |
检查并重新设定 |
|
温度传感器检测温度超过设定值 |
检查并重新设定 |
|